
Starting at $1,850,000.
*Pricing subject to change*
Style
2 Story Design
Bedrooms
5 (6th optional)
Bathrooms
4.5 (5th optional)
Garage
3 Car Side Entry
School District
Parkway
Municipality
Des Peres
Home Size
3,443 sq. ft.
Lot Size & Dimension
15,000 sq. ft.
100 x 150
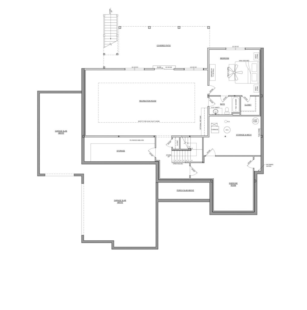
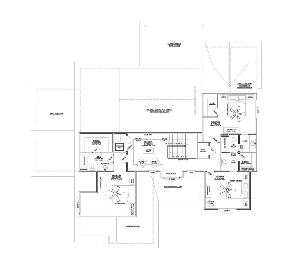
Floor Plans





Discover the opportunity to build your custom dream home with Benchmark Homes. This property offers the perfect canvas for a thoughtfully designed residence in one of St. Louis’s most desirable suburban communities.
This isn’t just a lot, it’s a design + build package with Benchmark Homes. Together, we’ll collaborate on your vision, tailoring every detail from architecture to finishes to bring your dream home to life.
Highlights:
- Main-floor primary suite with vaulted ceiling
- Second main-floor guest bedroom or office with full bathroom
- 5 total bedrooms, 4.5 bathrooms
- Vaulted great room for an open, airy feel
- Chef’s kitchen, including:
- Butler’s pantry
- Professional separate refrigerator/freezer
- Built-in oven
- 36" cooktop
- Abundant cabinetry and counter space
- Oversized mudroom with 5 cubbies
- Laundry room with folding counter and sink
- 3-car side-entry garage
- Covered deck with screened-in porch
- Walkout basement
- Optional finished lower level
- Optional 2nd-floor laundry
- 3 min drive to Des Peres Park & The Lodge Recreation Center
- 5 min drive to West County Shopping Center
- 15 min drive to Clayton & Frontenac
- 20 min drive to Downtown St. Louis
Below are inspiration photos, showcasing the quality, design, and craftsmanship we can bring to this property. Choose from these styles or let us help you create a one-of-a-kind design that reflects your vision.
Your home, your design, your lifestyle, crafted with Benchmark’s award-winning team and delivered with a concierge-level client experience.
For inquiries, design consultations, or to walk the property, contact Dina Merry:
Mobile: 314-717-9655 or Office: 314-909-7593 | info@benchmarkhomesstl.com
