
Starting at $3,500,000. Pricing subject to change.
Style
Ranch, 1.5 or 2 Story Design
Bedrooms
-
Bathrooms
-
Garage
-
School District
Parkway School
Municipality
Town & Country
Home Size
4,217+ sq. ft. above ground
2,000+ sq. ft. below ground
Lot Size & Dimension
3.24 Acres
300 x 470
Discover a rare opportunity to create your custom dream home on this spectacular estate lot in Town & Country, MO. This property offers unmatched privacy, green space, and convenience in one of St. Louis’s most prestigious communities.
This is not just a lot, it’s a design + build package with Benchmark Homes. Together, we’ll collaborate on your vision, tailoring every detail to your lifestyle, from architecture to finishes.
Highlights:
- 3.24 acres with estate-style presence and pool ready backyard
- Premier Town & Country location in Parkway West Schools
- Exclusive custom build partnership with Benchmark Custom Homes
- All-in project begins at $3.5M including land + construction budget
- Directly across from Queeny Park
- 10 min drive to West County Shopping Center
- 15 min drive to Westport Plaza
- 25 min drive to Downtown St. Louis
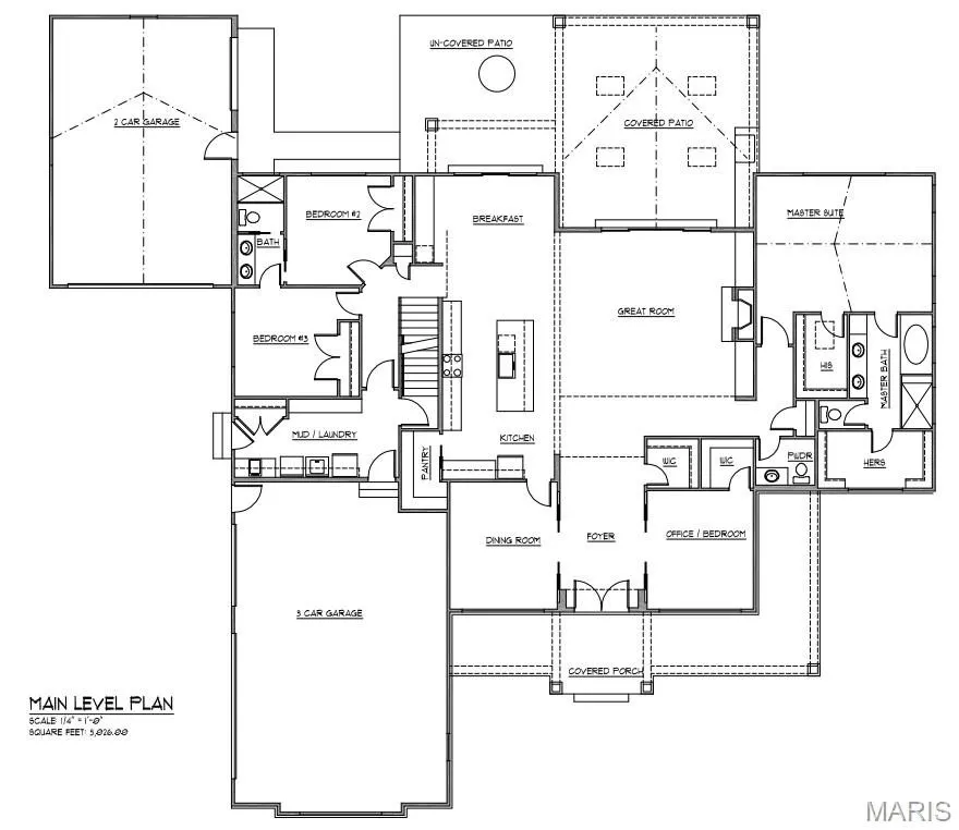
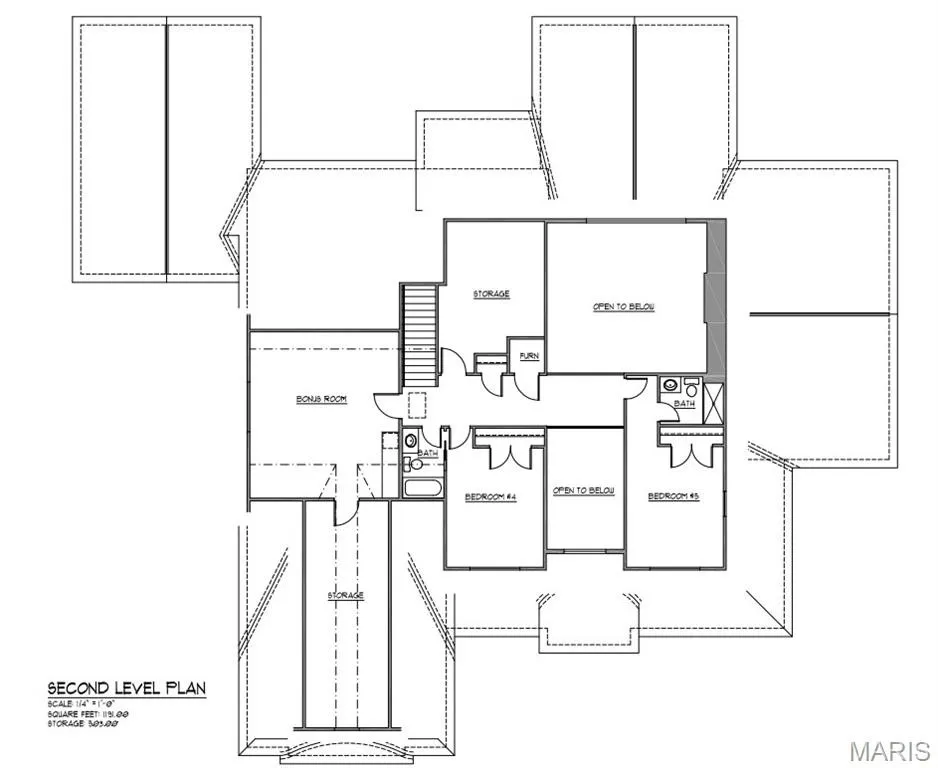
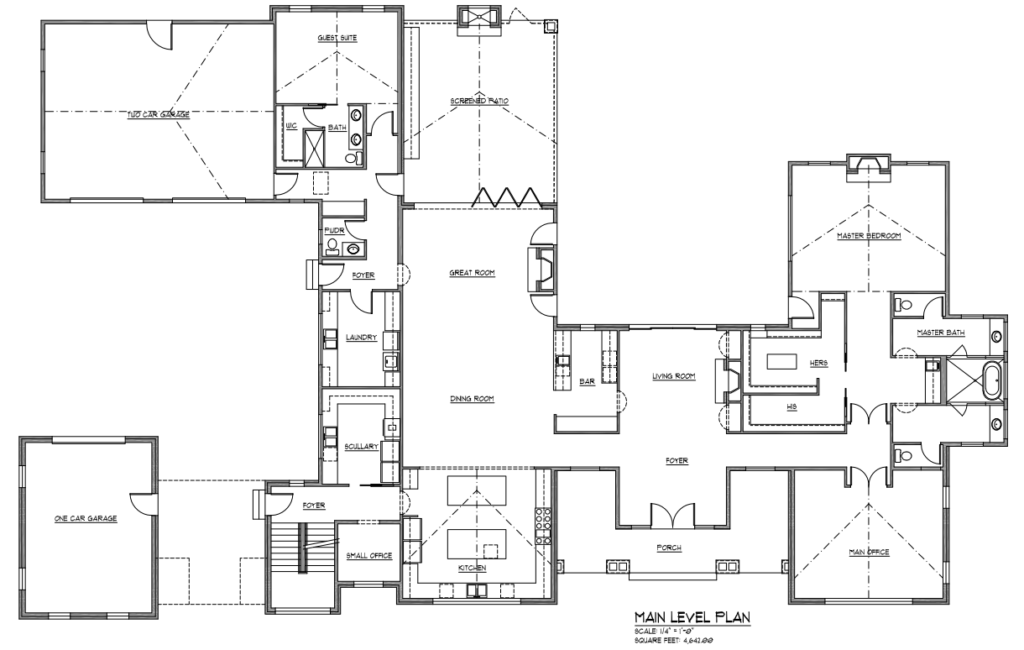
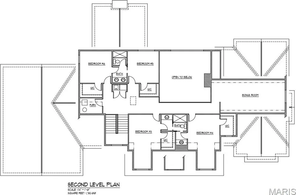
Below are inspiration photos, each one shows the caliber of design and craftsmanship we can deliver on this property. Build one of these styles, or let us help you create a fully custom design that reflects your vision.
Your home, your design, your legacy, crafted with Benchmark’s award-winning team and delivered with a concierge-level client experience.
For inquiries, design consultations, or to walk the property, contact Dina Merry:
Mobile: 314-717-9655 or Office: 314-909-7593 |Â info@benchmarkhomesstl.com




















